Тройник ТУ 1469-011-593377520-2005

Тройники предназначены для предприятий нефтегазового комплекса при эксплуатации их в районах с холодным и умеренным климатом. Рабочее давление Рр до 10 МПа (100 кгс/см2) Материал: Сталь 09Г2С ГОСТ 5520, 09ГСФ ТС 105 - 428
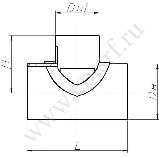
Технические требования по ТУ 102-488, ТУ 1469 – 011 – 593377520 -2005 Пример условного обозначения тройника наружным диаметром 1020 и 325 мм с толщиной стенки присоединяемой трубы 14 и 6 мм на рабочее давление 4 МПа при коэффициенте условий работы 0.6, климатического исполнения ХЛ: Тройник ТСН 1020×14-325×6-4-0,6-ХЛ-ТУ 102-488
|
Условное обозначение |
Dh мм |
DH1 мм |
L мм |
H мм |
Масса, кг |
|
TCH 530(18)-426(14)-10-0,6 ХЛ |
530 |
426 |
960 |
450 |
346 |
|
TCH 325(12)-426(14)-10-0,6 ХЛ |
530 |
325 |
800 |
450 |
270 |
|
TCH 530(10)-42610)-5,6-0,6 ХЛ |
530 |
426 |
960 |
450 |
208 |
|
TCH 530(10)-325(6)-5,6-0,6 ХЛ |
530 |
325 |
800 |
450 |
114 |
|
TCH 630(14)-426(14)-6,4-0,6 ХЛ |
630 |
426 |
980 |
500 |
337,2 |
|
TCH 720(10)-630(8)-4-0,75ХЛ |
720 |
630 |
1340 |
560 |
412 |
|
TCH 720(8)-630(7)-2,5-0,75ХЛ |
720 |
630 |
1340 |
560 |
399 |
|
TCH 720(17)-530(15)-7,5-0,6ХЛ |
720 |
530 |
1160 |
560 |
533 |
|
TCH 720(16)-530(14)- 7,5-0,6ХЛ |
720 |
530 |
1160 |
560 |
463 |
|
TCH 720(14)-530(11)- 7,5-0,75ХЛ |
720 |
530 |
1160 |
560 |
428 |
|
TCH 720(16)-426(14)- 7,5-0,6ХЛ |
720 |
426 |
1000 |
560 |
330 |
|
TCH 720(16)-325(10)- 7,5-0,6ХЛ |
720 |
325 |
800 |
560 |
325 |
|
TCH 720(10)-530(10)- 4-0,6ХЛ |
720 |
530 |
1160 |
560 |
354 |
|
TCH 720(10)-426(8)- 4-0,6ХЛ |
720 |
426 |
1000 |
560 |
309 |
|
TCH 720(10)-325(6)- 4-0,6ХЛ |
720 |
325 |
800 |
560 |
225 |
|
TCH 820(10)-630(9)- 4-0,75ХЛ |
820 |
630 |
1340 |
630 |
458 |
|
TCH 820(9)-630(7)- 2,5-0,75ХЛ |
820 |
630 |
1340 |
630 |
458 |
|
TCH 820(20)-720(16)- 7,5-0,6ХЛ |
820 |
720 |
1500 |
630 |
832 |
|
TCH 820(20)-530(14)- 7,5-0,6ХЛ |
820 |
530 |
1160 |
630 |
575 |
|
TCH 820(20)-426(14)- 7,5-0,6ХЛ |
820 |
426 |
960 |
630 |
448 |
|
TCH 820(20)-325(12)- 7,5-0,6ХЛ |
820 |
325 |
800 |
630 |
308 |
|
TCH 820(12)-720(10)- 4-0,6ХЛ |
820 |
720 |
1500 |
630 |
420 |
|
TCH 820(12)-530(10)- 4-0,6ХЛ |
820 |
530 |
1160 |
630 |
395 |
|
TCH 820(12)-426(9)- 4-0,6ХЛ |
820 |
426 |
960 |
630 |
366 |
|
TCH 820(12)-325(6)- 4-0,6ХЛ |
820 |
325 |
800 |
630 |
341 |
|
TCH 1020(24)-820(20)- 7,5-0,6ХЛ |
1020 |
820 |
1700 |
750 |
1310 |